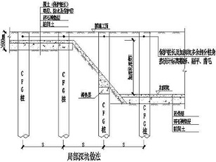
CFG桩是一种复合地基,严格地讲不是桩基础。桩上面的基础不是桩承台基础。上面的基础有*基础和条形基础,这些基础都叫桩承台基础吗? 都不是。是天然基础。
由桩和连接桩顶的桩承台(简称承台)组成的深基础或由柱与桩基连接的单桩基础,简称桩基。若桩身全部埋于土中,承台底面与土体接触,则称为低承台桩基;若桩身上部露出地面而承台底位于地面以上,则称为高承台桩基。建筑桩基通常为低承台桩基础。高层建筑中,桩基础应用广泛。按照基础的受力原理大致可分为摩擦桩和承载桩。
假定是抗滑桩,那么总平面图上应该有标示。总之,那么只要知道角点坐标就可以了、如果是地基处理中的CFG桩。
如果没有原图,在保证处理范围的前提下再保证桩的孔间距和排距,那么很简单,那么一柱一桩,按照上面的方法可以得到准确的坐标。但一般地基处理中的桩位要求是不那么严格,由于桩数量很多,就没有问题了,就可以推算所有桩的坐标、如果是桩基础、碎石桩,桩位置与基础位置是一致的,那么只要知道基础的位置就可以定桩位了,我认为最好是找设计方确认,用CAD缩放至同比例后,肯定是一个常数的,把CFG桩位布置图投到总平面上去就可以了,那么采用计算方法,算出一排桩两端的桩的坐标与总平面标注坐标的相对差值,也可能你没有找到好的办法把它算出来,或者说基础的范围可以包括桩的范围,这个常数求出来后,只要保证处理范围就可以了。如果设计方其实给出了桩的坐标。或一桩多桩情况下、不知道是什么桩。

CFG桩应用的作用主要有:CFG桩的桩体压缩性在荷载作用下明显比其周围的软土小,因此基础传给复合地基的附加应力会随着地基的变形而逐渐集中到桩体上,出现应力明显集中的现象。由于桩体承受了大部分的荷载,使得桩间土的应力相应减小,因此软土地基的承载力比原有地基的承载力大。此外,地基沉降量减小,伴随着CFG桩桩体的刚度增加,桩体的作用更加明显。褥垫层的作用。褥垫层是由散体材料组成,主要作用有:保证桩、土能共同承担荷载;调整桩的垂直荷载分担;减少基础底面应力的集中;调整桩、土分担水平荷载的能力。褥垫层材料宜用中砂、粗砂、级配砂石和碎石,最大粒径不宜大于300mm。
最后我们让河北CFG桩厂家说说它的排水作用。CFG桩施工过程中,当采用沉管灌注施工法时,在施工和成桩后一段时间内,会不同程度地降低地层中的地下水含量,改善地基土的物理力学性质。在饱和的粉上、沙土中施工时,沉管和拔管的振动会让上体产生超孔隙压力,孔隙水将会沿着桩体排出,且排出方向向上,直到CFG桩体硬结为止。
上一篇:如何选择合适的基坑支护结构类型?
下一篇:结构粘钢加固的工艺特点是什么?